fotoalbum "das sudhaus des adambräu. eine transformation"

von der brauerei zum "haus der architektur"

Das nach Plänen von Lois Welzenbacher 1926/27 errichtete Sudhaus des Adambräu ist einer der wenigen noch erhaltenen Bauten dieses bedeutenden Architekten in Tirol. Ein moderner Industriebau, entwickelt aus den Bedingungen des Produktionsprozesses, eine Maschine, Symbol für den Rationalismus der Technik, von Lois Welzenbacher mit Präzision in die Stadtlandschaft gesetzt.

Das stringente Konzept von Form und Funktion war jedoch offen genug, eine neue Nutzung zuzulassen. Die Architektengemeinschaft Rainer Köberl, Erich Wucherer, Thomas Giner und Andreas Pfeifer bewahrt mit ihrer sensiblen inneren Transformation den Geist des Hauses. Die ehemalige Struktur bleibt spürbar. Neue, völlig konträre Inhalte und Funktionen fügen sich nahtlos in das komplexe Raumgefüge ein und korrespondieren in einem metaphorischen Sinn mit der ursprünglich industriellen Nutzung. (mehr zur Transformation)

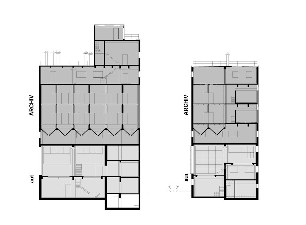
Das Archiv für Baukunst der Innsbrucker Universität, das sich der Speicherung, Bewahrung und Erforschung der Architektur und des Ingenieurbaus in der Alpenregion widmet, ist im ehemaligen Bereich der Silos und Förderanlagen untergebracht, die in Büroräume und Archivspeicher umgewandelt wurden. Der zur Südbahnstraße und zum Karmel-Areal geöffnete Raum für die Sudkessel - kreisrunde Öffnungen erinnern an sie - mit versetzten Geschoßen und überraschenden Durchblicken bzw. Verbindungen sowie die darunterliegenden, introvertierten ehemaligen Technikräume dienen der Architekturvermittlung durch Ausstellungen, Veranstaltungen und Vorträge von aut. architektur und tirol.

Mehr zum Thema

adambräu. geschichten einer transformation

Publikation

Das 2005 anlässlich der Neueröffnung des aut im Adambräu erschienene Buch verwebt die Historie des Adambräu mit jener des Architekturforum Tirol und erzählt die Geschichten eines außergewöhnlichen Prozesses. Preis: euro 19,00 (für aut: Mitglieder euro 15,00)

weiterlesen …